Danke!


[ Karmann-Ghia Forum ]


Geschrieben von Markus Weber, KGCS am 25. Februar 2003 09:22:59:

Als Antwort auf: @Maggus, Standheizung geschrieben von Rolf-Stephan Badura, IG Südheide am 24. Februar 2003 21:54:03:

>Hallo Maggus,
>
>>Die Standheizung ist eine alte Eberspacher aus einem Karmann.
>Da wird Dir meine Anleitung für die moderne B1LC kaum helfen.
>http://www.vw-karmann-ghia.de/badura/download/airheating.jpg
>Ich hab mal die 4 interessantesten eingescannt - und die zur Verlegung der
>Tankleitungen, Sicherheitshinweisen, etc weggelassen. Ist doch recht mühsam alles
>sauber einzuscannen. Wer's trotzdem braucht melde sich - da gehe ich kurz in den
>Copyshop um die Ecke...
>Sollte man aber auch bei http://www.Eberspaecher.com bekommen können.
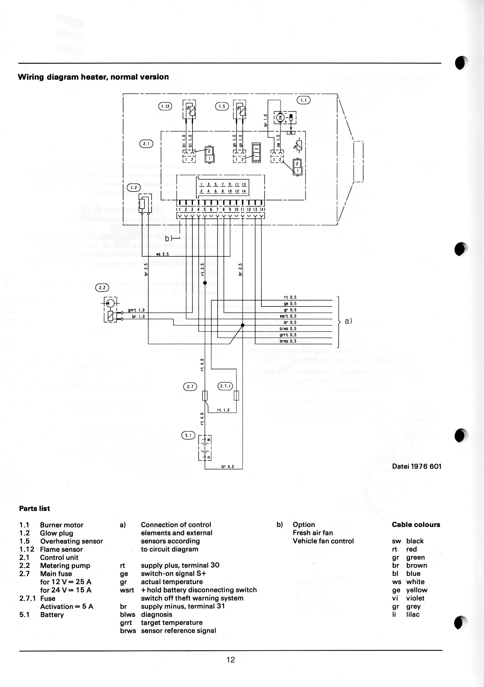
>Frontseite, Technische Grunddaten
>Seite 12, Schaltplan
>Seite 14, Schaltplan Kontrollinstumente
>Seite 3, Explosionszeichnung Anbauteile
>
>Grüße aus Berlin,
>Rolf-Stephan Badura


Antworten:


[ Karmann-Ghia Forum ]